SIP PANELOVÉ DOMY

INOVATIVNÍ ŘEŠENÍ S MINIMÁLNÍMI NÁKLADY

NAŠE SPOLEČNOST Fin2be s.r.o. VÁM EXKLUZIVNĚ PŘEDSTAVUJE MODERNÍ A EKOLOGICKOU FORMU BYDLENÍ, KTERÁ ZMĚNÍ VÁŠ POHLED NA DOMOV

RYCHLÁ REALIZACE

BEZ STAVEBNÍHO POVOLENÍ

OSB desky splní požadavky evropské normy, velmi nizká emisní třída E1, EO. Polystyrenová pěna je zcela inertní a nezpůsobuje alergické reakce. Materiály lze recyklovat.

EKOLOGICKÉ

Vytápění a chlazení stojí 4x méně než v domě z pórobetonu. Na 50 m2 stačí obyčejný 2 kW ohřívač a nemusíte čekat na zahřátí stěn a podlahy.

Rychlost montáže je úžasná, je tak vysoká, že nelze porovnat s žádnou ze stávajících stavebních technologií.

ENERGETICKY ÚSPORNÉ

RYCHLE SMONTOVANÉ

Projekt samostatně stojícího jednopodlažního objektu se zastavěnou plochou do 35 m2 je určený ke kvalitní rekreaci i k bydlení. Výhodou je, že k realizaci objektu nepotřebujete stavební povolení. Správný návrh, kvalitní a funkční vybavení domu Vám umožňuje ideální odpočinek. Navržená pergola chrání terasu před nadměrným slunečním zářením a snižuje náklady na vytápění objektu. Vhodné umístění krbu přispívá k efektivnímu vytápění celého objektu během chladného a zimního počasí. Vaše návštěva domu během takového období bude příjemná. Projekt je zařazen do kategorie - jednopodlažní domy a levné domy pro výstavbu.

Užitková plocha

35 m2

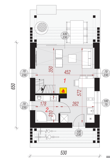
Představujeme projekt moderního, samostatně stojícího, letního domu se zastavěnou plochou do 35 m2 . Je to ideální nabídka pro lidi, kteří ocení relax a pohodu v přírodě. Dům nabízí pohodlný aplikační program přizpůsobený potřebám majitelů a velké prosklení umožňuje výhled do zahrady a okolí. Fasáda objektu je navržena ve stylu moderní stodoly se sedlovou střechou, která je pokrytá plechovou krytinou s drážkami. Vstupní prostor má praktické předsazené zastřešení a na terase s pergolou je možné zařídit atraktivní prostor k odpočinku a kvalitní relaxaci. V přízemí se nachází obytný prostor s posuvným zasklením terasy. Je zde situován obývací pokoj s pohodlnou sedací soupravou, kuchyňský kout s jídelním stolem a prosvětlená koupelna, ve které je umístěn sprchový kout. Klidový prostor je umístěn v mezipatře, kde se dají přidat postele: dvě jednolůžkové a jedna dvoulůžková.

Malý půvabný domeček, který je vhodný nejen jako rekreační dům, ale také jako celoročně obyvatelný dům, například pro seniory. Je navržený jako přízemní stavba s obývacím pokojem s oddělenou částí s kuchyňským a jídelním koutem. Uprostřed domu je umístěný krb a za ním je prostor pro TV. Prostor je dostatečně prosvětlený velkým oknem a dveřmi na terasu. Vedle obývacího pokoje je umístěná pohodlná ložnice s prostornými skříněmi. Z této místnosti je možné projít přímo do zahrady. Dispoziční řešení doplňuje nastavitelná světlá koupelna a zádveří, které slouží zároveň jako šatna. Jednoduchý, levně postavitelný a realizovatelný dům byl navržený ze zdících bloků zateplených polystyrénem s krytinou z keramické tašky. Použitá technologie zabezpečuje odolnost a nízké provozní náklady.

35 m2

Užitková plocha

Užitková plocha

25,28 m2

Hrubá stavba:

Holodům:

278.000 Kč bez DPH

937.500 Kč vč. DPH

Hrubá stavba:

390.000 Kč vč. DPH

Holodům:

1.312.500 Kč vč. DPH

Hrubá stavba:

282.000 Kč vč. DPH

Holodům:

948.500 Kč vč. DPH

SIP BLOKY

- Cenová dostupnost: náklady na výstavbu jsou relativně nízké.
- Minimální doba výstavby – teplý dům na 1-2 týdny!
- Domy SIP se nesmršťují, takže ihned po úklidu můžete začít dokončovat práce.
- Nízká hmotnost bloků SIP.
- Lehký základ: šroubový základ je instalován za 1 den!
- Snadná montáž, není potřeba žádné speciální vybavení.
- Stavět můžete po celý rok.
- Minimální poškození krajiny.
- V domě se SIP je to pohodlné jak v chladu, tak v teple.
- Místnosti v domě SIP se rychle vyhřívají.
- Není potřeba žádný výkonný systém vytápění a klimatizace.
- Spolehlivost a nenáročnost na obsluhu.
- Dům z bloků SIP je extrémně pevný.
- „Zelená technologie“ – se SIP BLOCK chráníte životní prostředí.

OBJEVTE VŠECHNY VÝHODY TOHOTO INOVATIVNÍHO DEVELOPERSKÉHO PROJEKTU.

LZE SPOJIT S VÝKUPEM STARÉ NEMOVITOSTI

MOŽNOST POSTAVIT DŮM KDEKOLIV NA SVĚTĚ

Můžete prodat Vaši starou nemovitost a nechat si část pozemku, na kterém si rychle a úsporně postavíte svůj nový, vysněný domov.

PRO VÍCE INFO O DALŠÍCH MOŽNOSTECH VARIABILNÍCH STAVEB NÁS NEVÁHEJTE